Access Road
Property Description
93% OF THE PROPERTY IS COMMERCIAL ZONE
7% OF THE PROPERTY IS TOURIST ZONE.
FEW METERS FROM AYIA NAPA MARINA.
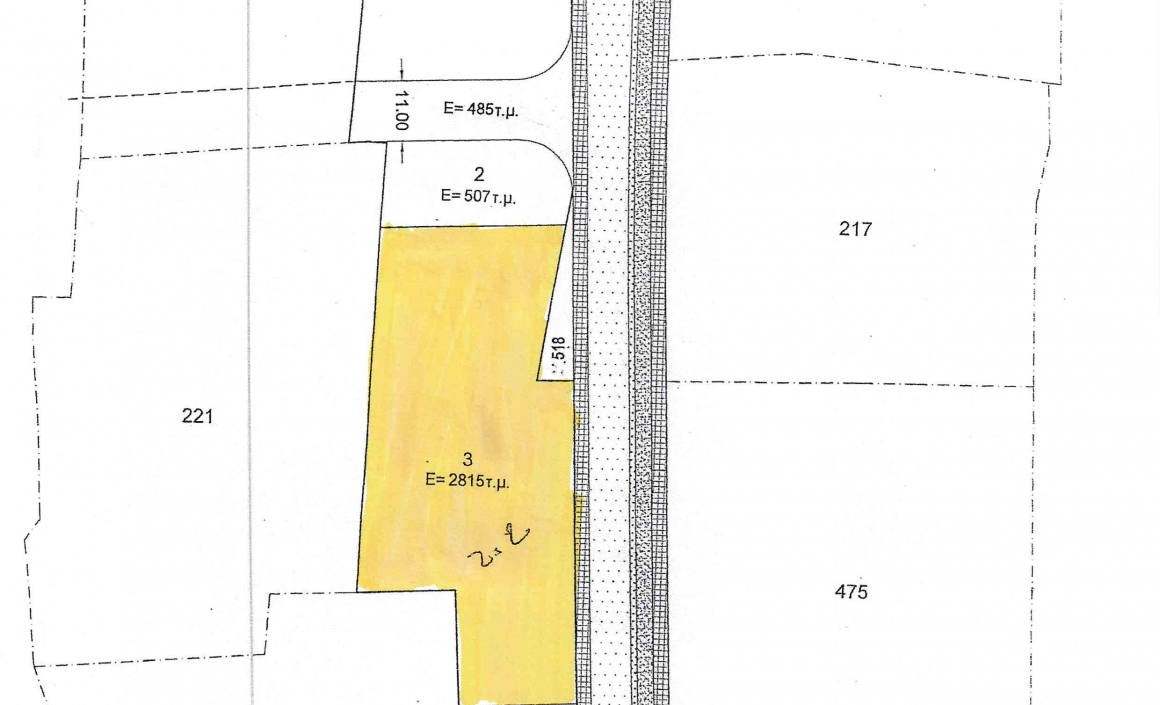
NEW PLOT DIVISION.
THE PROPERTY MAYBE IS SUBJECT TO VAT.
Sales Agent
cora@bppbrokers.com BPP BROKERS LTD
Plot (Commercial) in Ayia Napa, Famagusta for sale


93% OF THE PROPERTY IS COMMERCIAL ZONE
7% OF THE PROPERTY IS TOURIST ZONE.
FEW METERS FROM AYIA NAPA MARINA.
NEW PLOT DIVISION.
THE PROPERTY MAYBE IS SUBJECT TO VAT.
cora@bppbrokers.com BPP BROKERS LTD
Access Road
Electricity
Quiet location
Sea view
Water